Ref. 000597
Finques Genescà presenta aquesta casa en venda al centre del poble, situada en una parcel·la amb un gran jardí amb vistes, orientació sud i possibilitat de construir-hi una piscina. L’habitatge compta amb 259,60 m² construïts i 205,69 m² útils, distribuïts en quatre plantes, oferint espai, llum natural i una ubicació immillorable.
A la planta principal hi trobem la zona de dia, formada per un saló-menjador molt lluminós amb llar de foc i accés directe a la terrassa i al jardí, que gaudeixen de sol durant tot el dia. La cuina, independent i totalment equipada, es complementa amb un lavabo de cortesia.
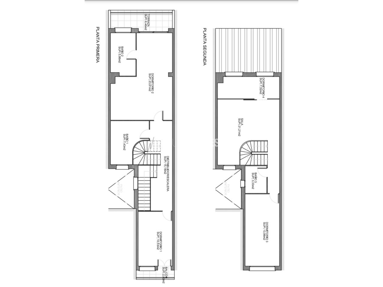
La primera planta acull la zona de nit, on un ampli espai polivalent separa les dues habitacions d’aquest nivell, totes dues amb balcó. Una d’elles és una suite de més de 20 m² amb bany privat. En aquesta planta també hi ha un altre bany complet.
A la segona planta hi trobem dos dormitoris més, una sala molt àmplia i versàtil —perfecta com a estudi, sala de jocs o zona d’estudi— i un altre bany complet.
La planta soterrani allotja una bodega amb molt d’encant, zona de safareig i un traster.
La casa ha estat reformada amb materials de qualitat i inclou múltiples millores: finestres de PVC amb trencament de pont tèrmic, obertura oscil·lobatent motoritzada, calefacció de gas, aire condicionat i descalcificador, garantint un confort òptim durant tot l’any.
Una oportunitat única per viure amb espai, llum i tranquil·litat, al cor del poble i en una casa llesta per entrar a viure.
La casa està moblada. Algunes imatges del mobiliari han estat creades amb intaligència artificial.
Contacta amb nosaltres per obtenir més informació o concertar una visita.
Segueix-nos a Instagram @finques_genesca per a més novetats.
Finques Genescà presenta aquesta casa en venda al centre del poble, situada en una parcel·la amb un gran jardí amb vistes, orientació sud i possibilitat de construir-hi una piscina. L’habitatge compta amb 259,60 m...
Finques Genescà presenta aquesta casa en venda al centre del poble, situada en una parcel·la amb un gran jardí amb vistes, orientació sud i possibilitat de construir-hi una piscina. L’habitatge compta amb 259,60 m² construïts i 205,69 m² útils, distribuïts en quatre plantes, oferint espai, llum natural i una ubicació immillorable.
A la planta principal hi trobem la zona de dia, formada per un saló-menjador molt lluminós amb llar de foc i accés directe a la terrassa i al jardí, que gaudeixen de sol durant tot el dia. La cuina, independent i totalment equipada, es complementa amb un lavabo de cortesia.
La primera planta acull la zona de nit, on un ampli espai polivalent separa les dues habitacions d’aquest nivell, totes dues amb balcó. Una d’elles és una suite de més de 20 m² amb bany privat. En aquesta planta també hi ha un altre bany complet.
A la segona planta hi trobem dos dormitoris més, una sala molt àmplia i versàtil —perfecta com a estudi, sala de jocs o zona d’estudi— i un altre bany complet.
La planta soterrani allotja una bodega amb molt d’encant, zona de safareig i un traster.
La casa ha estat reformada amb materials de qualitat i inclou múltiples millores: finestres de PVC amb trencament de pont tèrmic, obertura oscil·lobatent motoritzada, calefacció de gas, aire condicionat i descalcificador, garantint un confort òptim durant tot l’any.
Una oportunitat única per viure amb espai, llum i tranquil·litat, al cor del poble i en una casa llesta per entrar a viure.
La casa està moblada. Algunes imatges del mobiliari han estat creades amb intaligència artificial.
Contacta amb nosaltres per obtenir més informació o concertar una visita.
Segueix-nos a Instagram @finques_genesca per a més novetats.
Llegir més
|
Orientació |
Sur
|
|
Accepten mascota |
|
|
Jardí |
|
|
Adapt. mob. reduïda |
|
|
Calefacció |
|
|
Aire condicionat |
|
|
Terrassa |
|
|
Superficie solar |
177 m2
|
|
Superfície útil |
205 m2
|
Cert. energètica
Disponible
27 Kg CO2/m2 any
Veure etiqueta energètica