Ref. 000599
Finques Genescà presenta aquesta encantadora propietat situada en una parcel·la plana i cantonera a l’urbanització Verge de Montserrat, al centre del poble i a pocs metres de l’escola. Una ubicació immillorable que combina la tranquil·litat d’un entorn residencial amb la comoditat de tenir tots els serveis a l’abast.
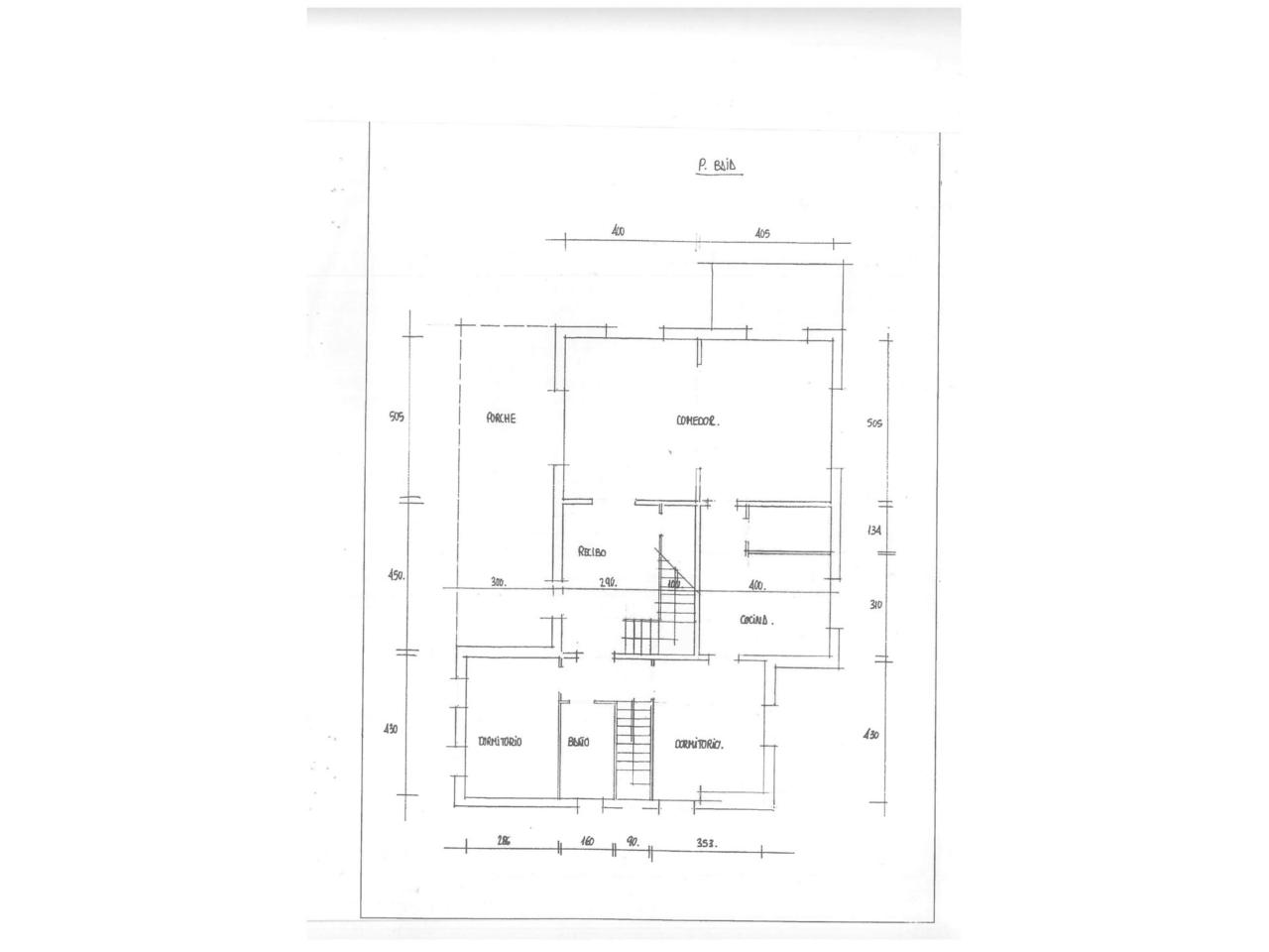
L’habitatge compta amb una lluminosa sala d’estar-menjador amb sortida directa a l’exterior, i una cuina independent, funcional i amb espai per a office. La zona de nit inclou tres habitacions dobles i una quarta estança polivalent, ideal com a despatx o dormitori addicional. També disposa de dos banys complets i un distribuïdor pràctic que connecta totes les dependències.
La parcel·la, totalment plana i de fàcil accés, ofereix múltiples possibilitats: jardí, zona de jocs, horta o fins i tot la instal·lació d’una piscina. En ser cantonera, gaudeix de més privacitat, millor orientació i entrada pròpia per a vehicles amb espai d’aparcament.
Una propietat amb molt de potencial, ideal per a famílies que busquen comoditat, amplitud i una ubicació privilegiada al centre del poble.
El mobiliari que apareix a les imatges ha estat creat mitjançant intel·ligència artificial.
Contacta amb nosaltres per obtenir més informació o concertar una visita.
Segueix-nos a Instagram @finques_genesca per a més novetats.
Finques Genescà presenta aquesta encantadora propietat situada en una parcel·la plana i cantonera a l’urbanització Verge de Montserrat, al centre del poble i a pocs metres de l’escola. Una ubicació immillorable q...
Finques Genescà presenta aquesta encantadora propietat situada en una parcel·la plana i cantonera a l’urbanització Verge de Montserrat, al centre del poble i a pocs metres de l’escola. Una ubicació immillorable que combina la tranquil·litat d’un entorn residencial amb la comoditat de tenir tots els serveis a l’abast.
L’habitatge compta amb una lluminosa sala d’estar-menjador amb sortida directa a l’exterior, i una cuina independent, funcional i amb espai per a office. La zona de nit inclou tres habitacions dobles i una quarta estança polivalent, ideal com a despatx o dormitori addicional. També disposa de dos banys complets i un distribuïdor pràctic que connecta totes les dependències.
La parcel·la, totalment plana i de fàcil accés, ofereix múltiples possibilitats: jardí, zona de jocs, horta o fins i tot la instal·lació d’una piscina. En ser cantonera, gaudeix de més privacitat, millor orientació i entrada pròpia per a vehicles amb espai d’aparcament.
Una propietat amb molt de potencial, ideal per a famílies que busquen comoditat, amplitud i una ubicació privilegiada al centre del poble.
El mobiliari que apareix a les imatges ha estat creat mitjançant intel·ligència artificial.
Contacta amb nosaltres per obtenir més informació o concertar una visita.
Segueix-nos a Instagram @finques_genesca per a més novetats.
Llegir més
|
Pàrquing |
|
|
Orientació |
Sur
|
|
Accepten mascota |
|
|
Jardí |
|
|
Adapt. mob. reduïda |
|
|
Piscina |
|
|
Superficie solar |
845 m2
|
|
Superfície útil |
266 m2
|